✔ 原装正品 | ✔ 现货速发 | ✔ 专用发票 | ✔ 原厂质保
GY/VGD-200-POCL3-G 三氯氧磷检测仪是一款专为三氯氧磷(POCL3)气体浓度监测设计的高精度、低功耗气体检测设备。该仪器采用智能传感器技术与MCU芯片控制,具备高灵敏度、高精度和快速响应能力,适用于对安全性要求极高的工业环境。标准测量范围为0-10ppm,支持可选更大量程配置,满足多样化应用需求。
设备采用模块化设计,集成LCDTFT高清液晶显示屏,支持中英文界面切换,并可通过遥控实现免开盖操作,包括报警值设置、调零、校准、复位及地址码修改等功能。支持4-20mA模拟信号、RS485数字信号及开关量输出,便于接入PLC、DCS等工控系统,也可单机联动风机、电磁阀等外部设备,提升自动化控制效率。
✓ 高精度智能传感:采用可定制量程的智能传感器,确保检测灵敏度高、精度高、线性稳定、响应快。
✓ 多种信号输出兼容:支持三线制4-20mA、RS485、开关量等多种信号输出方式,方便系统组网与设备联动。
✓ 远程操作与无线传输:支持LORA、4G、WiFi、NB、GPRS等多种无线传输方式,数据可上传至云平台或第三方监控系统。
✓ 安全防爆设计:整机通过防爆认证(Ex db IIC T6 Gb),铝合金铸体外壳坚固耐用,适用于爆炸性气体环境。
✓ 本地与远程报警:内置声光报警指示,支持本地报警、红外遥控消音,并可通过无线信号实现远程手机、电脑、监控室多端报警提示。
1. 智能传感器与MCU控制:搭载高性能MCU芯片与可定制量程传感器,保障检测数据精准可靠,响应迅速,长期运行稳定性强。
2. 多模式信号输出:标配4-20mA、RS485和开关量输出,适配各类工业控制系统,支持信号微调功能,简化系统调试与维护流程。
3. 无线通信扩展能力:可根据用户需求定制Zigbee、LORA、433M、4G、WiFi、NB-IoT、GPRS等无线传输模块,实现远程实时监控。
4. 人机交互友好:配备点阵式LCDTFT高清显示屏,支持中英文菜单切换;可通过红外遥控器完成全部关键操作,无需打开外壳,安全便捷。
5. 一体化声光报警系统:本地具备声光报警功能,同时支持通过报警主机或无线网络将报警信息推送至远程终端,确保及时响应危险状况。
| 项目 | 参数 |
|---|---|
| 气体名称 | 分子式 |
| 一氧化碳 | CO |
| 氧气 | O2 |
| 硫化氢 | H2S |
| 氢气 | H2 |
| 二氧化硫 | SO2 |
| 二氧化氮 | NO2 |
| 一氧化氮 | NO |
| 氯气 | CL2 |
| 氯化氢 | HCL |
| 可燃性 | EX |
| 甲醛 | CH2O |
| 环氧乙烷 | C2H4O |
| 联氨 | N2H4 |
| 氨气 | NH3 |
| 六氟化硫 | SF6 |
| 氟利昂 | CFC/R507 |
| 氟利昂 | R12/R22 |
| 氟利昂 | R125/R290 |
| GY/VGD-200 主机其他可测有毒气体列表 | |||||
| 气体名称 | 分子式 | 测量范围(ppm) | 气体名称 | 分子式 | 测量范围(ppm) |
| 一氧化碳 | CO | 0-200/1000/2000 | 硅烷 | SIH4 | 0-20/50 |
| 氧气 | O2 | 0-25%/30%/100% | 过氧化氢 | H2O2 | 0-50/100/2000 |
| 硫化氢 | H2S | 0-50/100/200/500 | 光气 | COCL2 | 0-1 |
| 氢气 | H2 | 0-1000/2000/40000 | 二氧化氯 | CLO2 | 36545 |
| 二氧化硫 | SO2 | 0-20/100/200/2000 | 氟气 | F2 | 0-1 |
| 二氧化氮 | NO2 | 0-20/100/2000 | 四氢噻吩 | C4H4S | 0-50 mg/m3 |
| 一氧化氮 | NO | 0-20/100/2000 | 硒化氢 | SEH2 | 0-5 |
| 氯气 | CL2 | 0-20/200 | 氟化氢 | HF | 0-10 |
| 氯化氢 | HCL | 0-20/50/200 | 甲硫醇 | CH3SH | 0-10 |
| 可燃性 | EX | 0-1/5/100/2000 | 二氧化碳 | CO2 | 0-2000/5000/10000 |
| 甲醛 | CH2O | 0-10/50/100 | 乙烯 | C2H4 | 0-10/20/100/2000 |
| 环氧乙烷 | C2H4O | 0-10/50/100/500 | 溴化氢 | HBR | 0-20/200 |
| 联氨 | N2H4 | 0-1 | 溴气 | BR2 | 0-20/200 |
| 氨气 | NH3 | 0-50/100/1000 | 砷化氢 | ASH3 | 0-1 |
| 可燃性 | EX | 0-20/30/100 | 臭氧 | O3 | 0-1/5/10/50/100/200 |
| 六氟化硫 | SF6 | 0-1000 ,2000 | 乙硼烷 | B2H6 | 0-1 |
| 氟利昂 | CFC/R507 | 0-1000/2000 | 冷媒 | RX | 0-2000/5000 |
| 氟利昂 | R12/R22 | 0-1000/2000 | 氟利昂 | R113/R114 | 0-1000/2000 |
| 氟利昂 | R125/R290 | 0-1000/2000 | 氟利昂 | R134a/R404a | 0-1000/2000 |
适用领域:化工生产、半导体制造、环保监测、制药工业、冶金、能源、科研实验室等涉及有毒有害气体检测的场所。

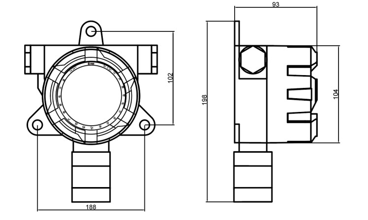
产品尺寸图

产品安装建议
执行标准:
GB/T3836.1-2021《爆炸性环境第一部分:通用要求》
GB/T3836.31-2021《爆炸性环境第三十一部分:由防粉尘点燃外壳“t”保护的设备》
GB3836.15-2000《爆炸性气体环境用电气设备第15部分:危险场所电气安装(煤矿除外)》
GB12476.1-2013《可燃性粉尘环境用电气设备第1部分:通用要求》GB12358-2006《作业场所环境气体检测报警仪通用技术要求》
GBZ2.1-2007《工作场所有害因素职业接触限值》
GB4208-2008《外壳防护等级(IP代码)》
防爆认证信息:
防爆证等级:Ex db IIC T6 Gb
防爆证编号:SYEx23.04100
安全认证:
通过CMA、CNAS、CE、ROHS、SIL、UL、ECM等多项国际安全认证。
建议定期进行零点校准和满量程标定,保持传感器性能稳定;避免在高温、高湿、强电磁干扰环境中长期运行;清洁时请使用干燥软布擦拭外壳,禁止使用腐蚀性溶剂;非专业人员不得擅自拆卸设备;遥控操作时需确保距离在有效范围内(通常≤10米),以保证指令准确接收。
A:标准测量范围为0-10ppm,支持根据用户需求选择更大量程配置。
A:支持,可选配LORA、4G、WiFi、NB、GPRS、Zigbee等多种无线传输方式,实现远程数据上传与监控。
A:具备,防爆等级为Ex db IIC T6 Gb,适用于爆炸性气体环境,防爆证编号SYEx23.04100。
A:可以,支持通过红外遥控器实现免开盖操作,包括报警值设定、调零、校准、复位、修改地址码等功能。
A:标准配置支持三线制4-20mA模拟信号、RS485数字信号和开关量信号输出,便于接入PLC、DCS等工控系统。








1、首先客户需要确认产品品牌、产品型号、产品货号、产品规格、参数、货期等;
2、其次确认产品旳使用须知,买卖双方信息相互,确认收货和收票地址;
3、科研仪器设备属于精密仪器,非产品质量问题本公司不做退换货处理,购买时请再三确认;
4、小型仪器退换货要求确保仪器未拆箱、未通电、未使用、附件包装完好无损不影响二次销售,联系客服人员处理退换货事宜;
5、退换货要求产品外包装套纸箱,禁止无包装发货,拒收到付;

