✔ 原装正品 | ✔ 现货速发 | ✔ 专用发票 | ✔ 原厂质保
GY/VGD-200-EA-G丙烯酸乙酯检测仪是一款高精度、快速响应的智能气体检测设备,采用MCU芯片与模块化设计,专为工业环境中对有毒有害气体进行实时监测和报警而开发。该仪器具备整体隔爆结构与固定安装方式,适用于存在爆炸性气体或粉尘环境的场所,保障作业安全。
设备配备LCDTFT高清液晶显示屏,支持中英文操作界面切换,并可通过遥控实现免开盖调校,极大提升了现场维护的安全性与便捷性。支持多种信号输出模式,包括4-20mA模拟量、RS485数字信号及开关量输出,可无缝接入PLC、DCS等工控系统,也可联动风机、电磁阀等外部控制装置,广泛应用于化工、石油、冶金、制药等行业。
✓ 高精度智能传感技术:采用可定制量程的智能传感器,确保检测灵敏度高、精度高、线性稳定、响应速度快。
✓ 多种信号输出兼容性强:标配三线制4~20mA、RS485和开关量信号输出,支持Zigbee、LORA、4G、WiFi、NB、GPRS等无线传输方式,便于系统组网与远程监控。
✓ 免开盖遥控操作:可通过红外遥控完成报警值设定、调零、校准、复位、修改地址码等操作,无需打开外壳,提升防爆安全性。
✓ 坚固防爆结构设计:铝合金铸体防爆外壳,符合Ex db IIC T6 Gb防爆等级,适应严苛工业环境。
✓ 多重国际认证保障:通过CMA、CNAS、CE、ROHS、SIL、UL、ECM等多项国际安全认证,满足全球主流标准要求。
✓ 本地与远程双重报警:内置声光报警指示,同时支持通过报警主机或无线信号将报警信息推送至手机、电脑、监控室及第三方平台。
1. 智能化气体检测能力
基于MCU芯片控制的低功耗模块化架构,集成高性能传感器,能够精准识别目标气体浓度变化,实现快速响应与稳定输出,适用于连续在线监测场景。
2. 灵活的通信与组网方案
支持4-20mA模拟信号、RS485数字通信以及开关量输出,可根据用户需求扩展Zigbee、LoRa、433M、4G、WiFi、NB-IoT、GPRS等多种无线传输协议,轻松实现数据远传与系统集成。
3. 友好人机交互界面
点阵式LCDTFT高清液晶屏显示实时气体浓度、工作状态与报警信息,支持中英文菜单自由切换,操作直观清晰。
4. 安全便捷的现场维护机制
所有参数设置与校准均可通过红外遥控器完成,避免在危险区域开盖操作,有效防止因误操作引发安全事故。
5. 强大的报警与联动功能
具备本地一体化声光报警功能,还可通过开关量输出联动风机、电磁阀等设备;报警信息亦可通过无线网络发送至远程终端,实现多级预警响应。
| 项目 | 参数 |
|---|---|
| 气体名称 | 分子式 |
| 一氧化碳 | CO |
| 氧气 | O2 |
| 硫化氢 | H2S |
| 氢气 | H2 |
| 二氧化硫 | SO2 |
| 二氧化氮 | NO2 |
| 一氧化氮 | NO |
| 氯气 | CL2 |
| 氯化氢 | HCL |
| 可燃性 | EX |
| 甲醛 | CH2O |
| 环氧乙烷 | C2H4O |
| 联氨 | N2H4 |
| 氨气 | NH3 |
| 六氟化硫 | SF6 |
| 氟利昂 | CFC/R507 |
| 氟利昂 | R12/R22 |
| 氟利昂 | R125/R290 |
适用领域:石油化工、天然气处理、冶金冶炼、电力能源、生物制药、食品加工、环境监测、城市燃气管网、地下空间通风系统等存在易燃、易爆或有毒气体泄漏风险的工业与公共安全场景。

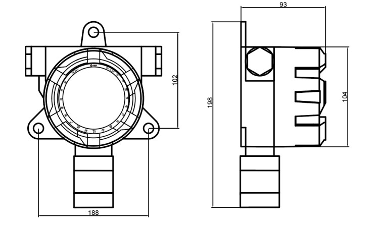
产品尺寸图(如上)展示了设备的整体外形与安装接口布局,便于用户规划布线与固定安装位置。

安装建议图(如上)提供了典型安装高度、方向与周围障碍物距离参考,确保采样准确性与响应效率。
执行标准:
GB/T3836.1-2021《爆炸性环境第一部分:通用要求》
GB/T3836.31-2021《爆炸性环境第三十一部分:由防粉尘点燃外壳“t”保护的设备》
GB3836.15-2000《爆炸性气体环境用电气设备第15部分:危险场所电气安装(煤矿除外)》
GB12476.1-2013《可燃性粉尘环境用电气设备第1部分:通用要求》GB12358-2006《作业场所环境气体检测报警仪通用技术要求》
GBZ2.1-2007《工作场所有害因素职业接触限值》
GB4208-2008《外壳防护等级(IP代码)》
防爆信息:
防爆证等级:Ex db IIC T6 Gb
防爆证编号:SYEx23.04100
可测气体类型与量程(部分列举):
一氧化碳 CO:0-200/1000/2000 ppm
氧气 O2:0-25%/30%/100%
硫化氢 H2S:0-50/100/200/500 ppm
氢气 H2:0-1000/2000/40000 ppm
二氧化硫 SO2:0-20/100/200/2000 ppm
甲醛 CH2O:0-10/50/100 ppm
环氧乙烷 C2H4O:0-10/50/100/500 ppm
氨气 NH3:0-50/100/1000 ppm
臭氧 O3:0-1/5/10/50/100/200 ppm
二氧化碳 CO2:0-2000/5000/10000 ppm
六氟化硫 SF6:0-1000 ,2000 ppm
氟利昂(多种型号):0-1000/2000 ppm
冷媒 RX:0-2000/5000 ppm
建议定期进行零点校准与满量程标定,以保证测量精度;清洁时请使用干燥软布擦拭外壳,禁止使用腐蚀性溶剂;安装时应避开强电磁干扰源与高温高湿区域;严禁在通电状态下拆卸外壳;推荐每6个月进行一次全面性能检查。
A:支持三线制4~20mA模拟信号、RS485数字信号和开关量信号输出,还可根据需求定制Zigbee、LORA、433M、4G、WiFi、NB、GPRS等无线传输方式。
A:是的,该设备具有整体隔爆结构,防爆等级为Ex db IIC T6 Gb,符合GB/T3836.1-2021等多项防爆标准,适用于爆炸性气体环境。
A:可以,设备支持红外遥控免开盖操作,可通过遥控器完成调零、校准、报警值设定、复位及地址码修改等功能。
A:已通过CMA、CNAS、CE、ROHS、SIL、UL、ECM等多项国际安全认证,并取得防爆合格证(编号:SYEx23.04100)。
A:支持,设备配备点阵LCDTFT高清液晶屏,可自行切换中英文操作界面,方便不同用户使用。








1、首先客户需要确认产品品牌、产品型号、产品货号、产品规格、参数、货期等;
2、其次确认产品旳使用须知,买卖双方信息相互,确认收货和收票地址;
3、科研仪器设备属于精密仪器,非产品质量问题本公司不做退换货处理,购买时请再三确认;
4、小型仪器退换货要求确保仪器未拆箱、未通电、未使用、附件包装完好无损不影响二次销售,联系客服人员处理退换货事宜;
5、退换货要求产品外包装套纸箱,禁止无包装发货,拒收到付;

