✔ 原装正品 | ✔ 现货速发 | ✔ 专用发票 | ✔ 原厂质保
GY/VGD-200-NO-G一氧化氮检测仪是一款专为工业环境中一氧化氮(NO)气体浓度监测而设计的高精度、低功耗气体检测设备。该仪器采用智能传感器技术与MCU芯片控制,具备模块化结构和整体隔爆设计,适用于固定安装场景,广泛用于对安全性要求较高的危险场所。
设备配备点阵式LCDTFT高清液晶显示屏,支持中英文界面切换,操作直观便捷。通过4-20mA模拟信号、RS485数字信号及开关量输出,可轻松接入PLC、DCS等工控系统,实现自动化监控。同时支持Zigbee、LORA、4G、WiFi等多种无线传输方式,并可通过红外遥控完成报警设置、调零、校准等操作,无需开盖,保障防爆完整性与使用安全。
✓ 高精度智能传感:采用可定制量程的智能传感器,确保检测灵敏度高、响应快、线性稳定,测量精准可靠。
✓ 多种信号输出兼容性强:标配三线制4~20mA、RS485和开关量输出,便于接入各类工业控制系统,支持远程联动控制设备如风机、电磁阀。
✓ 免开盖遥控操作:支持红外遥控实现报警值设定、调零、校准、复位、地址码修改等功能,提升维护效率并保障防爆性能。
✓ 安全认证齐全:通过CMA、CNAS、CE、ROHS、SIL、UL、ECM等多项国际安全认证,符合GB/T3836.1-2021等多项国家标准。
✓ 强固防爆结构:铝合金铸体外壳,防护等级符合IP标准,防爆等级达Ex db IIC T6 Gb,适用于爆炸性气体环境。
✓ 支持无线扩展与远程报警:可选配4G、NB、LORA等无线通信模块,实现手机、电脑、监控室及第三方平台的远程报警提示。
1. 智能传感器与高精度检测
搭载可定制量程的智能传感器,针对一氧化氮(NO)及其他多种有毒有害气体实现高灵敏度、高精度检测,响应速度快,数据稳定性强,适用于复杂工业环境下的连续监测。
2. 多模式信号输出与系统集成
提供4-20mA模拟输出、RS485数字通信和开关量三种输出方式,兼容主流PLC、DCS、DDC系统,也可独立驱动声光报警器或联动控制装置,满足不同组网需求。
3. 红外遥控非接触式操作
无需打开外壳即可通过遥控器完成调零、校准、报警设置、地址修改等关键操作,避免在危险环境中暴露内部电路,保障设备防爆完整性与人员安全。
4. 高清显示与双语界面
配备点阵式LCDTFT液晶屏,实时显示气体浓度、工作状态、报警信息等内容,支持中英文菜单自由切换,操作更人性化。
5. 本地与远程双重报警机制
内置一体化声光报警指示,同时可通过无线网络将报警信号推送至手机、电脑、监控中心或第三方平台,实现多层级预警响应。
6. 可扩展无线通信能力
支持定制Zigbee、LORA、433M、4G、WiFi、NB-IoT、GPRS等多种无线传输协议,适应无布线场景或远距离数据上传需求。
| 项目 | 参数 |
|---|---|
| 气体名称 | 分子式 |
| 一氧化碳 | CO |
| 氧气 | O2 |
| 硫化氢 | H2S |
| 氢气 | H2 |
| 二氧化硫 | SO2 |
| 二氧化氮 | NO2 |
| 一氧化氮 | NO |
| 氯气 | CL2 |
| 氯化氢 | HCL |
| 可燃性 | EX |
| 甲醛 | CH2O |
| 环氧乙烷 | C2H4O |
| 联氨 | N2H4 |
| 氨气 | NH3 |
| 六氟化硫 | SF6 |
| 氟利昂 | CFC/R507 |
| 氟利昂 | R12/R22 |
| 氟利昂 | R125/R290 |
适用领域:石油化工、冶金制造、燃气输配、制药工业、环保监测、食品加工、仓储物流、地下管网、实验室安全等存在有毒有害气体泄漏风险的工业场所。

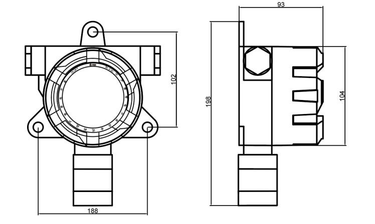
产品尺寸图

产品安装建议
执行标准:
GB/T3836.1-2021《爆炸性环境第一部分:通用要求》
GB/T3836.31-2021《爆炸性环境第三十一部分:由防粉尘点燃外壳“t”保护的设备》
GB3836.15-2000《爆炸性气体环境用电气设备第15部分:危险场所电气安装(煤矿除外)》
GB12476.1-2013《可燃性粉尘环境用电气设备第1部分:通用要求》GB12358-2006《作业场所环境气体检测报警仪通用技术要求》
GBZ2.1-2007《工作场所有害因素职业接触限值》
GB4208-2008《外壳防护等级(IP代码)》
防爆信息:
防爆证等级:Ex db IIC T6 Gb
防爆证编号:SYEx23.04100
建议定期进行零点校准和满量程标定,以保证长期测量准确性;清洁时请使用干燥软布擦拭外壳,禁止使用腐蚀性溶剂;安装位置应避开强电磁干扰源和高温高湿区域;严禁在通电状态下拆卸外壳;遥控操作时保持距离在5米以内,确保指令准确接收。
A:支持三线制4~20mA模拟信号、RS485数字信号和开关量信号输出,方便接入PLC、DCS等工业控制系统。
A:可以,设备具有整体隔爆结构,防爆等级为Ex db IIC T6 Gb,符合GB/T3836.1-2021等标准,适用于爆炸性气体环境。
A:可以,设备支持通过报警控制主机或无线信号(如4G、WiFi、LORA)将报警信息发送至手机、电脑、监控室或第三方平台。
A:可通过红外遥控器实现免开盖操作,完成报警值设置、调零、校准、复位等功能,无需打开外壳。
A:是的,GY/VGD-200主机可检测多种气体,包括一氧化碳(CO)、氧气(O2)、硫化氢(H2S)、氯气(CL2)、氨气(NH3)、可燃性气体(EX)等,具体见可测气体列表。








1、首先客户需要确认产品品牌、产品型号、产品货号、产品规格、参数、货期等;
2、其次确认产品旳使用须知,买卖双方信息相互,确认收货和收票地址;
3、科研仪器设备属于精密仪器,非产品质量问题本公司不做退换货处理,购买时请再三确认;
4、小型仪器退换货要求确保仪器未拆箱、未通电、未使用、附件包装完好无损不影响二次销售,联系客服人员处理退换货事宜;
5、退换货要求产品外包装套纸箱,禁止无包装发货,拒收到付;

