✔ 原装正品 | ✔ 现货速发 | ✔ 专用发票 | ✔ 原厂质保
果宇科技 GY/VGD-200-R125-G 冷媒、制冷剂检测仪是一款专为五氟乙烷(R125)气体检测设计的高精度气体浓度检测设备,采用先进的红外NDIR技术,具备高灵敏度、高线性稳定性和快速响应能力。该仪器基于MCU芯片实现低功耗模块化设计,整体隔爆结构确保在危险环境中安全运行,适用于制冷、空调系统中的冷媒泄漏监测。
设备标配高清LCDTFT液晶显示屏,支持中英文界面切换,并可通过遥控器实现免开盖操作,完成报警值设定、调零、校准等功能。支持4-20mA、RS485和开关量信号输出,兼容PLC、DCS等工业控制系统,同时可选配LORA、4G、WiFi等无线传输模块,实现远程数据监控与多端查看历史记录,提升运维效率。
✓ 高精度红外NDIR检测技术:针对五氟乙烷(R125)优化设计,检测范围0-1000ppm(可选2000、5000ppm),误差小于±1%F.S,保障测量精准可靠。
✓ 多种信号输出方式:标准配置支持三线制4-20mA模拟信号、RS485数字信号及开关量输出,便于接入各类工控系统或联动风机、电磁阀等外部设备。
✓ 无线扩展与远程监控:可定制Zigbee、LORA、4G、WiFi、NB、GPRS等多种无线传输模块,实现PC端或手机端实时查看数据与历史记录。
✓ 免开盖遥控操作:通过红外遥控器可完成报警值设置、调零、校准、复位、地址码修改等操作,维护便捷且避免拆机带来的安全隐患。
✓ 防爆与坚固结构设计:铝合金铸体外壳,防护等级符合IP65要求,防爆等级Ex db IIC T6 Gb,适用于爆炸性气体环境,运行稳定可靠。
✓ 国际认证齐全:通过CMA、CNAS、CE、ROHS、SIL、UL、ECM等多项国际安全认证,满足GB/T3836.1-2021等国家标准规范。
1. 智能传感器与高精度检测
采用可定制量程的智能传感器,结合红外NDIR技术,确保对R125气体具有优异的选择性和抗干扰能力,具备高灵敏度、高精度、响应速度快等特点,测量误差小于±1%F.S。
2. 多模式信号输出与系统集成
支持4-20mA、RS485、开关量三种标准输出方式,方便接入PLC、DCS、DDC等自动化控制系统;也可通过开关量直接联动风机、电磁阀等执行机构,实现自动控制与安全联锁。
3. 远程通信与数据管理
可选配LORA、4G、WiFi、NB-IoT等无线模块,实现远距离数据上传,支持在手机、电脑或第三方平台查看实时浓度与历史趋势,便于集中监控与故障追溯。
4. 友好人机交互界面
配备点阵式高清LCDTFT液晶屏,显示清晰,支持中英文菜单切换,操作直观;所有参数可通过遥控器进行设置,无需打开外壳,保障防爆完整性。
5. 声光报警与远程提示
内置本地一体化声光报警装置,当气体浓度超限时自动触发报警;同时可通过报警主机或无线网络将警报推送至监控室、手机或云端平台,支持红外遥控一键消音。
| 项目 | 参数 |
|---|---|
| 气体名称 | 分子式 |
| 一氧化碳 | CO |
| 氧气 | O2 |
| 硫化氢 | H2S |
| 氢气 | H2 |
| 二氧化硫 | SO2 |
| 二氧化氮 | NO2 |
| 一氧化氮 | NO |
| 氯气 | CL2 |
| 氯化氢 | HCL |
| 可燃性 | EX |
| 甲醛 | CH2O |
| 环氧乙烷 | C2H4O |
| 联氨 | N2H4 |
| 氨气 | NH3 |
| 六氟化硫 | SF6 |
| 氟利昂 | CFC/R507 |
| 氟利昂 | R12/R22 |
| 氟利昂 | R125/R290 |
适用领域:制冷设备制造、中央空调系统维护、工业冷冻仓储、空调安装与维修、化工生产、电力设施、环境监测站、消防安检等涉及冷媒使用与泄漏风险的场所。

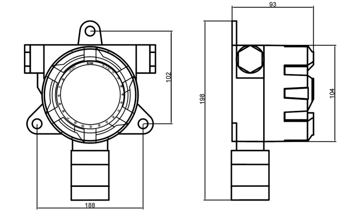
产品尺寸图

产品安装建议
执行标准:
GB/T3836.1-2021《爆炸性环境第一部分:通用要求》
GB/T3836.31-2021《爆炸性环境第三十一部分:由防粉尘点燃外壳“t”保护的设备》
GB3836.15-2000《爆炸性气体环境用电气设备第15部分:危险场所电气安装(煤矿除外)》
GB12476.1-2013《可燃性粉尘环境用电气设备第1部分:通用要求》GB12358-2006《作业场所环境气体检测报警仪通用技术要求》
GBZ2.1-2007《工作场所有害因素职业接触限值》
GB4208-2008《外壳防护等级(IP代码)》
防爆信息:
防爆证等级:Ex db IIC T6 Gb
防爆证编号:SYEx23.04100
可测气体类型及量程(部分):
一氧化碳 CO:0-200/1000/2000 ppm
氧气 O2:0-25%/30%/100%
硫化氢 H2S:0-50/100/200/500 ppm
氢气 H2:0-1000/2000/40000 ppm
二氧化硫 SO2:0-20/100/200/2000 ppm
二氧化氮 NO2:0-20/100/2000 ppm
一氧化氮 NO:0-20/100/2000 ppm
氯气 CL2:0-20/200 ppm
氯化氢 HCL:0-20/50/200 ppm
可燃性 EX:0-1/5/100/2000 或 0-20/30/100
甲醛 CH2O:0-10/50/100 ppm
环氧乙烷 C2H4O:0-10/50/100/500 ppm
六氟化硫 SF6:0-1000 ,2000
氟利昂 R125/R290:0-1000/2000 ppm
冷媒 RX:0-2000/5000 ppm
A:该检测仪采用红外NDIR技术,专为五氟乙烷(R125)气体检测设计,具备高选择性和抗干扰能力。
A:标准配置支持三线制4-20mA模拟信号、RS485数字信号和开关量输出,可根据需求定制LORA、4G、WiFi等无线传输模块。
A:是的,设备支持通过红外遥控器实现免开盖操作,包括报警值设置、调零、校准、复位和地址码修改等功能。
A:设备防爆等级为Ex db IIC T6 Gb,适用于爆炸性气体环境,符合GB/T3836.1-2021等多项国家标准。
A:GY/VGD-200系列主机还可检测一氧化碳(CO)、氧气(O2)、硫化氢(H2S)、氢气(H2)、二氧化硫(SO2)、氯气(CL2)、氨气(NH3)、六氟化硫(SF6)、氟利昂(R134a/R404a)等多种气体,具体量程详见技术参数表。








1、首先客户需要确认产品品牌、产品型号、产品货号、产品规格、参数、货期等;
2、其次确认产品旳使用须知,买卖双方信息相互,确认收货和收票地址;
3、科研仪器设备属于精密仪器,非产品质量问题本公司不做退换货处理,购买时请再三确认;
4、小型仪器退换货要求确保仪器未拆箱、未通电、未使用、附件包装完好无损不影响二次销售,联系客服人员处理退换货事宜;
5、退换货要求产品外包装套纸箱,禁止无包装发货,拒收到付;

