✔ 原装正品 | ✔ 现货速发 | ✔ 专用发票 | ✔ 原厂质保
GY/VGD-200-C2H2-G乙炔检测仪是一款专为乙炔气体精确监测设计的智能化气体浓度检测仪,采用低功耗MCU芯片与智能传感器技术,具备高灵敏度、快速响应和稳定的线性输出特性。该设备采用整体隔爆(d)结构设计,适用于危险环境中的固定式安装,确保在爆炸性气体环境中安全可靠运行。
检测仪配备高清LCDTFT液晶显示屏,支持中英文界面切换,并集成声光报警功能,可实现本地实时状态提示。支持多种信号输出方式,包括三线制4-20mA模拟信号、RS485数字信号及开关量输出,便于接入PLC、DCS等工业控制系统。同时可选配Zigbee、LORA、4G、Wi-Fi等多种无线传输模式,满足远程监控与数据采集需求。
✓ 高精度智能传感:采用可定制量程的智能传感器,保障高灵敏度、高精度、线性稳定和快速响应。
✓ 多种信号输出兼容:标配4-20mA、RS485和开关量输出,方便接入各类工控系统或联动风机、电磁阀等外部设备。
✓ 无线扩展能力强:支持Zigbee、LORA、433M、4G、WiFi、NB、GPRS等多种无线通信协议,实现远程数据传输与报警推送。
✓ 免开盖遥控操作:可通过红外遥控器完成报警值设置、调零、校准、复位、地址码修改等功能,维护便捷安全。
✓ 坚固防爆结构:铝合金铸体外壳,符合Ex db IIC T6 Gb防爆等级,适用于严苛工业环境。
✓ 国际认证齐全:通过CMA、CNAS、CE、ROHS、SIL、UL、ECM等多项国际安全认证,品质可靠。
1. 智能化检测核心
内置低功耗MCU芯片与智能传感器,实现精准的数据采集与转化,确保信号输出稳定,延长设备使用寿命,适用于长期连续监测场景。
2. 多语言人机交互界面
点阵式LCDTFT高清液晶屏支持中英文菜单自由切换,操作直观清晰,适合不同语言用户使用。
3. 灵活组网与系统集成
支持标准工业信号输出,可轻松集成至DCS、DDC、PLC等自动化控制系统,也支持通过开关量直接控制通风、切断等安全装置。
4. 远程报警与联动能力
本地声光报警结合远程报警功能,可通过主机或无线网络将报警信息推送至手机、电脑、监控室或第三方平台,提升应急响应效率。
5. 安全免拆维护
支持红外遥控非接触式操作,无需打开外壳即可完成调零、校准、参数设置等操作,避免在危险区域开盖引发安全隐患。
| 项目 | 参数 |
|---|---|
| 气体名称 | 分子式 |
| 一氧化碳 | CO |
| 氧气 | O2 |
| 硫化氢 | H2S |
| 氢气 | H2 |
| 二氧化硫 | SO2 |
| 二氧化氮 | NO2 |
| 一氧化氮 | NO |
| 氯气 | CL2 |
| 氯化氢 | HCL |
| 可燃性 | EX |
| 甲醛 | CH2O |
| 环氧乙烷 | C2H4O |
| 联氨 | N2H4 |
| 氨气 | NH3 |
| 六氟化硫 | SF6 |
| 氟利昂 | CFC/R507 |
| 氟利昂 | R12/R22 |
| 氟利昂 | R125/R290 |
适用领域:石油化工、燃气输配、冶金制造、制药工业、食品加工、环境监测、实验室分析、地下管廊、煤矿安全等存在易燃、有毒、有害气体泄漏风险的场所。

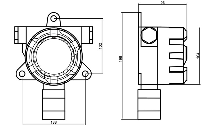
产品尺寸图:用于指导安装与布设空间规划。

产品安装建议图:提供标准安装位置与方向参考,确保检测有效性。
执行标准:
GB/T3836.1-2021《爆炸性环境第一部分:通用要求》
GB/T3836.31-2021《爆炸性环境第三十一部分:由防粉尘点燃外壳“t”保护的设备》
GB3836.15-2000《爆炸性气体环境用电气设备第15部分:危险场所电气安装(煤矿除外)》
GB12476.1-2013《可燃性粉尘环境用电气设备第1部分:通用要求》GB12358-2006《作业场所环境气体检测报警仪通用技术要求》
GBZ2.1-2007《工作场所有害因素职业接触限值》
GB4208-2008《外壳防护等级(IP代码)》
防爆信息:
防爆证等级:Ex db IIC T6 Gb
防爆证编号:SYEx23.04100
建议定期进行零点校准和满量程标定,以保证测量精度;清洁时请使用干燥软布擦拭屏幕和外壳,禁止使用腐蚀性溶剂;安装应避开强电磁干扰源和高温高湿区域;严禁在通电状态下拆卸外壳;推荐每6个月进行一次全面性能检测。
A:支持,可选配Zigbee、LORA、433M、4G、Wi-Fi、NB、GPRS等多种无线信号传输方式,实现远程监控和数据采集。
A:防爆等级为Ex db IIC T6 Gb,符合GB/T3836.1-2021等国家标准,适用于爆炸性气体环境。
A:可以,设备支持红外遥控免开盖操作,可通过遥控器完成调零、校准、报警值设定等功能。
A:标准配置为三线制4-20mA模拟信号、RS485数字信号和开关量信号输出,便于系统集成。
A:是的,已通过CMA、CNAS、CE、ROHS、SIL、UL、ECM等多项国际安全认证。








1、首先客户需要确认产品品牌、产品型号、产品货号、产品规格、参数、货期等;
2、其次确认产品旳使用须知,买卖双方信息相互,确认收货和收票地址;
3、科研仪器设备属于精密仪器,非产品质量问题本公司不做退换货处理,购买时请再三确认;
4、小型仪器退换货要求确保仪器未拆箱、未通电、未使用、附件包装完好无损不影响二次销售,联系客服人员处理退换货事宜;
5、退换货要求产品外包装套纸箱,禁止无包装发货,拒收到付;

