✔ 原装正品 | ✔ 现货速发 | ✔ 专用发票 | ✔ 原厂质保
GY/VGD-200-O2-G(0-30%Vol) 氧气检测仪是一款采用高精度智能传感器与低功耗MCU芯片设计的气体浓度检测设备,具备灵敏度高、响应速度快、信号输出稳定等优势。该检测仪采用整体隔爆(d)结构和固定安装方式,适用于工业现场及复杂环境下的长期稳定运行。
配备点阵高清LCDTFT液晶显示屏,支持中英文界面切换,并可通过红外遥控实现免开盖操作,包括调零、校准、报警值设置等功能。设备支持4-20mA模拟信号、RS485数字信号及多种无线传输方式(如Zigbee、LORA、4G、WiFi等),可灵活接入PLC、DCS等工控系统或远程监控平台,满足现代化工业安全监测需求。
✓ 高精度智能传感技术:采用可定制量程的智能传感器,确保检测仪具有高灵敏度、高精度、良好的线性稳定性与快速响应能力。
✓ 多种信号输出兼容性强:标准配置支持三线制4~20mA、RS485数字信号和开关量输出,可选Zigbee、LORA、4G、WiFi、NB、GPRS等多种无线传输方式,便于系统组网与远程监控。
✓ 红外遥控免开盖操作:可通过红外遥控完成报警值设定、调零、校准、复位、地址码修改等操作,避免现场拆机维护,提升安全性与便捷性。
✓ 一体化声光报警与远程联动:本地集成声光报警指示,同时支持通过报警主机或无线信号实现手机、电脑、监控室及第三方平台的远程报警提示,并支持红外一键消音。
✓ 坚固防爆设计与国际认证:铝合金铸体防爆外壳,防护等级符合GB4208-2008标准,防爆等级为Ex db IIC T6 Gb,通过CMA、CNAS、CE、ROHS、SIL、UL、ECM等多项国际认证,保障设备在危险场所的安全可靠运行。
1. 智能化检测与低功耗运行
基于MCU芯片控制的模块化设计,实现低功耗运行与精准数据转换,保障长时间稳定工作,适用于无人值守场景。
2. 多语言人机交互界面
配备高清LCDTFT显示屏,支持中英文菜单自由切换,操作直观清晰,适应不同用户语言习惯。
3. 灵活的信号输出配置
除标准4-20mA和RS485输出外,可根据用户需求定制无线传输方案,方便接入各类自动化控制系统。
4. 免开盖维护设计
所有关键参数均可通过红外遥控器进行设置,无需打开外壳即可完成校准、调零、报警设置等操作,有效防止粉尘、湿气侵入,延长设备寿命。
5. 完善的报警机制
内置声光报警装置,支持本地报警触发,并可通过开关量联动风机、电磁阀等外部设备,也可将报警信息上传至远程终端。
| 项目 | 参数 |
|---|---|
| 气体名称 | 分子式 |
| 一氧化碳 | CO |
| 氧气 | O2 |
| 硫化氢 | H2S |
| 氢气 | H2 |
| 二氧化硫 | SO2 |
| 二氧化氮 | NO2 |
| 一氧化氮 | NO |
| 氯气 | CL2 |
| 氯化氢 | HCL |
| 可燃性 | EX |
| 甲醛 | CH2O |
| 环氧乙烷 | C2H4O |
| 联氨 | N2H4 |
| 氨气 | NH3 |
| 六氟化硫 | SF6 |
| 氟利昂 | CFC/R507 |
| 氟利昂 | R12/R22 |
| 氟利昂 | R125/R290 |
适用领域:石油化工、冶金冶炼、燃气输配、制药工业、食品加工、环境监测、污水处理、地下管廊、矿井通风、实验室安全等存在易燃、易爆、有毒有害气体泄漏风险的工业与公共安全场景。
执行标准:
防爆信息:

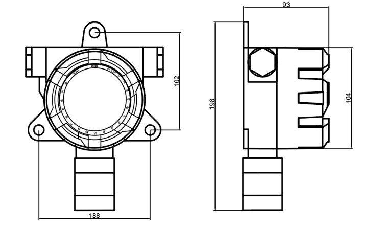
图示:GY/VGD-200-O2-G(0-30%Vol) 氧气检测仪产品尺寸图

图示:GY/VGD-200-O2-G(0-30%Vol) 氧气检测仪安装建议图
建议定期对传感器进行零点校准和跨度标定,以保证测量精度;避免在强电磁干扰、高温高湿或腐蚀性气体环境中长期暴露;清洁时请使用干燥软布擦拭外壳,禁止用水直接冲洗;非专业人员不得擅自拆卸设备;更换传感器或维修前应切断电源并确认环境安全。
| GY/VGD-200 主机其他可测有毒气体列表 | |||||
| 气体名称 | 分子式 | 测量范围(ppm) | 气体名称 | 分子式 | 测量范围(ppm) |
| 一氧化碳 | CO | 0-200/1000/2000 | 硅烷 | SIH4 | 0-20/50 |
| 氧气 | O2 | 0-25%/30%/100% | 过氧化氢 | H2O2 | 0-50/100/2000 |
| 硫化氢 | H2S | 0-50/100/200/500 | 光气 | COCL2 | 0-1 |
| 氢气 | H2 | 0-1000/2000/40000 | 二氧化氯 | CLO2 | 36545 |
| 二氧化硫 | SO2 | 0-20/100/200/2000 | 氟气 | F2 | 0-1 |
| 二氧化氮 | NO2 | 0-20/100/2000 | 四氢噻吩 | C4H4S | 0-50 mg/m3 |
| 一氧化氮 | NO | 0-20/100/2000 | 硒化氢 | SEH2 | 0-5 |
| 氯气 | CL2 | 0-20/200 | 氟化氢 | HF | 0-10 |
| 氯化氢 | HCL | 0-20/50/200 | 甲硫醇 | CH3SH | 0-10 |
| 可燃性 | EX | 0-1/5/100/2000 | 二氧化碳 | CO2 | 0-2000/5000/10000 |
| 甲醛 | CH2O | 0-10/50/100 | 乙烯 | C2H4 | 0-10/20/100/2000 |
| 环氧乙烷 | C2H4O | 0-10/50/100/500 | 溴化氢 | HBR | 0-20/200 |
| 联氨 | N2H4 | 0-1 | 溴气 | BR2 | 0-20/200 |
| 氨气 | NH3 | 0-50/100/1000 | 砷化氢 | ASH3 | 0-1 |
| 可燃性 | EX | 0-20/30/100 | 臭氧 | O3 | 0-1/5/10/50/100/200 |
| 六氟化硫 | SF6 | 0-1000 ,2000 | 乙硼烷 | B2H6 | 0-1 |
| 氟利昂 | CFC/R507 | 0-1000/2000 | 冷媒 | RX | 0-2000/5000 |
| 氟利昂 | R12/R22 | 0-1000/2000 | 氟利昂 | R113/R114 | 0-1000/2000 |
| 氟利昂 | R125/R290 | 0-1000/2000 | 氟利昂 | R134a/R404a | 0-1000/2000 |
A:该检测仪标准配置支持三线制4~20mA模拟信号、RS485数字信号和开关量信号输出,还可根据需求定制Zigbee、LORA、433M、4G、WiFi、NB、GPRS等无线信号传输方式。
A:是的,设备支持红外遥控免开盖操作,可通过遥控器完成报警值设定、调零、校准、复位、地址码修改等功能,无需拆机即可完成维护。
A:该设备防爆等级为Ex db IIC T6 Gb,符合GB/T3836.1-2021等多项国家标准,适用于存在爆炸性气体和可燃性粉尘的工业场所,如石化、燃气、矿井等高危环境。
A:除氧气外,GY/VGD-200主机还可检测一氧化碳(CO)、硫化氢(H2S)、氢气(H2)、氨气(NH3)、臭氧(O3)、二氧化碳(CO2)、可燃性气体(EX)以及多种氟利昂类冷媒等多种有毒有害气体。
A:具备一体化声光报警指示,可在本地发出声光警报,同时支持通过开关量联动外部设备(如风机、电磁阀),并可通过无线方式将报警信息发送至手机、电脑或监控室。








1、首先客户需要确认产品品牌、产品型号、产品货号、产品规格、参数、货期等;
2、其次确认产品旳使用须知,买卖双方信息相互,确认收货和收票地址;
3、科研仪器设备属于精密仪器,非产品质量问题本公司不做退换货处理,购买时请再三确认;
4、小型仪器退换货要求确保仪器未拆箱、未通电、未使用、附件包装完好无损不影响二次销售,联系客服人员处理退换货事宜;
5、退换货要求产品外包装套纸箱,禁止无包装发货,拒收到付;

