✔ 原装正品 | ✔ 现货速发 | ✔ 专用发票 | ✔ 原厂质保
果宇科技 GY/VGD-200-R507-G 冷媒、制冷剂检测仪是一款专为R507冷媒气体检测设计的高精度气体浓度检测设备,采用先进的红外NDIR技术,具备0-1000ppm的标准测量范围(可选2000、5000ppm),适用于工业环境中对制冷剂泄漏的实时监测。该产品集智能化传感器、低功耗MCU芯片与模块化设计于一体,定位为固定安装式、隔爆结构的在线气体监测解决方案。
GY/VGD-200-R507-G 具备高灵敏度、高精度和快速响应特性,支持4-20mA、RS485、开关量等多种信号输出方式,并可扩展LORA、4G、WiFi等无线传输功能,便于接入PLC、DCS等工业控制系统。配备点阵高清LCDTFT显示屏,支持中英文操作界面切换,内置本地声光报警功能,同时可通过远程信号实现多平台联动报警,保障危险环境下的安全运行。
✓ 高精度NDIR传感技术:采用红外NDIR检测原理,确保对R507冷媒气体的高灵敏度、高精度和长期稳定性检测。
✓ 多种信号输出兼容性强:标配4-20mA、RS485和开关量输出,支持Zigbee、LORA、4G、WiFi、NB、GPRS等无线传输方式,方便系统集成与远程监控。
✓ 隔爆设计安全可靠:铝合金铸体防爆外壳,防爆等级达Ex db IIC T6 Gb,适用于爆炸性气体环境,符合GB/T3836.1-2021等多项国家标准及CE、ROHS、SIL、UL等国际认证。
✓ 智能化免开盖操作:支持红外遥控进行调零、校准、报警值设置、地址码修改等操作,无需开盖维护,提升使用安全性与便捷性。
✓ 长寿命传感器设计:传感器寿命约10年,性能稳定,适合长时间、连续在线监测应用,降低更换频率与运维成本。
1. 智能化传感器检测技术
采用可定制量程的智能传感器,保障检测仪在不同工况下均具备高灵敏度、高精度、良好的线性稳定性和快速响应能力,适应复杂工业环境中的气体监测需求。
2. 多模式信号输出与系统集成
支持三线制4-20mA模拟信号、RS485数字信号及开关量输出,可直接接入PLC、DCS、DDC等工控系统;也可通过开关量联动风机、电磁阀等外部控制设备,实现自动化响应。
3. 无线通信扩展能力
可根据用户需求定制Zigbee、LORA、433M、4G、WiFi、NB、GPRS等多种无线传输方式,满足远距离、无布线场景下的数据上传与远程监控需求。
4. 友好人机交互界面
配备点阵高清LCDTFT液晶显示屏,操作界面支持中英文自由切换,信息显示清晰直观,便于现场查看与配置。
5. 远程报警与本地声光提示
具备本地一体化声光报警功能,同时可通过报警控制主机或无线信号将报警信息推送至手机、电脑、监控室或第三方平台,支持红外遥控一键消音,应急处理更高效。
| 项目 | 参数 |
|---|---|
| 气体名称 | 分子式 |
| 一氧化碳 | CO |
| 氧气 | O2 |
| 硫化氢 | H2S |
| 氢气 | H2 |
| 二氧化硫 | SO2 |
| 二氧化氮 | NO2 |
| 一氧化氮 | NO |
| 氯气 | CL2 |
| 氯化氢 | HCL |
| 可燃性 | EX |
| 甲醛 | CH2O |
| 环氧乙烷 | C2H4O |
| 联氨 | N2H4 |
| 氨气 | NH3 |
| 六氟化硫 | SF6 |
| 氟利昂 | CFC/R507 |
| 氟利昂 | R12/R22 |
| 氟利昂 | R125/R290 |
适用领域:工业制冷系统监测、化工生产安全监控、制药与电子洁净厂房、冷链物流仓储、暖通空调(HVAC)系统、环境安全检测、能源设施维护等。
执行标准:
GB/T3836.1-2021《爆炸性环境第一部分:通用要求》
GB/T3836.31-2021《爆炸性环境第三十一部分:由防粉尘点燃外壳“t”保护的设备》
GB3836.15-2000《爆炸性气体环境用电气设备第15部分:危险场所电气安装(煤矿除外)》
GB12476.1-2013《可燃性粉尘环境用电气设备第1部分:通用要求》GB12358-2006《作业场所环境气体检测报警仪通用技术要求》
GBZ2.1-2007《工作场所有害因素职业接触限值》
GB4208-2008《外壳防护等级(IP代码)》

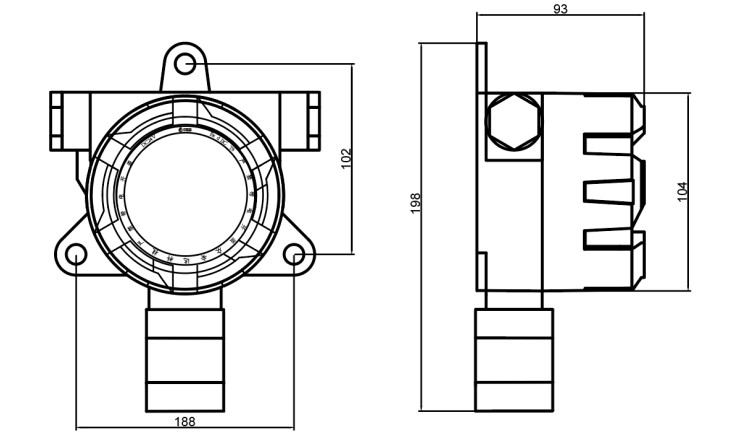
产品尺寸图

产品安装建议
可选气体类型和量程:
一氧化碳 CO:0-200/1000/2000 ppm
氧气 O2:0-25%/30%/100%
硫化氢 H2S:0-50/100/200/500 ppm
氢气 H2:0-1000/2000/40000 ppm
二氧化硫 SO2:0-20/100/200/2000 ppm
二氧化氮 NO2:0-20/100/2000 ppm
一氧化氮 NO:0-20/100/2000 ppm
氯气 CL2:0-20/200 ppm
氯化氢 HCL:0-20/50/200 ppm
可燃性 EX:0-1/5/100/2000 %LEL 或 0-20/30/100 %VOL
甲醛 CH2O:0-10/50/100 ppm
环氧乙烷 C2H4O:0-10/50/100/500 ppm
联氨 N2H4:0-1 ppm
氨气 NH3:0-50/100/1000 ppm
六氟化硫 SF6:0-1000 ,2000 ppm
氟利昂 CFC/R507:0-1000/2000 ppm
氟利昂 R12/R22:0-1000/2000 ppm
氟利昂 R125/R290:0-1000/2000 ppm
氟利昂 R134a/R404a:0-1000/2000 ppm
过氧化氢 H2O2:0-50/100/2000 ppm
光气 COCL2:0-1 ppm
二氧化氯 CLO2:36545 ppm
氟气 F2:0-1 ppm
四氢噻吩 C4H4S:0-50 mg/m3
硒化氢 SEH2:0-5 ppm
甲硫醇 CH3SH:0-10 ppm
溴化氢 HBR:0-20/200 ppm
溴气 BR2:0-20/200 ppm
砷化氢 ASH3:0-1 ppm
臭氧 O3:0-1/5/10/50/100/200 ppm
乙硼烷 B2H6:0-1 ppm
冷媒 RX:0-2000/5000 ppm
硅烷 SIH4:0-20/50 ppm
建议定期进行零点校准和满量程校准以保证测量精度;避免在高温、高湿、强电磁干扰环境下长期运行;清洁时请使用干燥软布擦拭外壳,禁止使用腐蚀性溶剂;严禁擅自拆卸防爆外壳,维护操作应由专业人员通过红外遥控完成;安装位置应靠近可能的气体泄漏源,且通风良好,符合GB12358-2006相关要求。
A:该设备对R507冷媒的标准测量范围为0-1000ppm,可选2000ppm或5000ppm量程。
A:支持,可根据需求定制LORA、4G、WiFi、Zigbee、NB、GPRS、433M等多种无线传输方式。
A:具备,采用铝合金铸体防爆外壳,防爆等级为Ex db IIC T6 Gb,防爆证编号SYEx23.04100。
A:可以,支持通过红外遥控实现免开盖的调零、校准、报警值设置、复位和地址码修改等功能。
A:通过CE、ROHS、SIL、UL、ECM等多项国际认证,并符合GB/T3836.1-2021等国家标准。








1、首先客户需要确认产品品牌、产品型号、产品货号、产品规格、参数、货期等;
2、其次确认产品旳使用须知,买卖双方信息相互,确认收货和收票地址;
3、科研仪器设备属于精密仪器,非产品质量问题本公司不做退换货处理,购买时请再三确认;
4、小型仪器退换货要求确保仪器未拆箱、未通电、未使用、附件包装完好无损不影响二次销售,联系客服人员处理退换货事宜;
5、退换货要求产品外包装套纸箱,禁止无包装发货,拒收到付;

