✔ 原装正品 | ✔ 现货速发 | ✔ 专用发票 | ✔ 原厂质保
GY/VGD-200-He-G(0-10%Vol)氦气检测仪是一款采用MCU芯片和智能传感器技术的高精度气体浓度检测设备,具备模块化设计与低功耗特性。该仪器采用整体隔爆(d)结构,适用于存在爆炸性环境的工业场所,支持固定安装方式,确保在严苛工况下的稳定运行。
设备配备点阵高清LCDTFT液晶显示屏,支持中英文界面切换,并可通过遥控实现免开盖操作,包括报警值设置、调零、校准、复位及地址码修改等功能。支持4-20mA模拟信号、RS485数字信号、开关量输出以及多种无线传输方式(如LORA、4G、WiFi等),便于接入PLC、DCS等工控系统,实现远程监控与数据联动控制。
✓ 高灵敏度智能传感器:采用可定制量程的智能传感器,保障高灵敏度、高精度、线性稳定和快速响应。
✓ 多种信号输出兼容性强:支持三线制4-20mA、RS485、开关量及Zigbee、LORA、4G、WiFi、NB、GPRS等多种无线传输方式,方便系统组网与远程监控。
✓ 免开盖遥控操作:可通过红外遥控完成报警值设定、调零、校准、复位、修改地址码等操作,维护便捷安全。
✓ 一体化声光报警与远程提示:本地声光报警,同时可通过报警主机或无线信号实现手机、电脑、监控室及第三方平台的远程报警通知。
✓ 防爆坚固外壳设计:铝合金铸体防爆外壳,防护等级符合GB4208-2008标准,防爆等级为Ex db IIC T6 Gb,适用于高危爆炸性环境。
✓ 国际认证齐全:通过CMA、CNAS、CE、ROHS、SIL、UL、ECM等多项国际安全认证,符合GB/T3836.1-2021等多项国家标准。
1. 智能传感与精准检测
搭载高性能MCU芯片与可定制量程智能传感器,确保检测仪具备高灵敏度、高精度和良好的线性稳定性,响应速度快,适用于对气体浓度变化敏感的应用场景。
2. 多模式信号输出
标配三线制4-20mA模拟输出、RS485数字通信接口和开关量信号输出,可灵活接入各类工业控制系统(如PLC、DCS、DDC),也可直接联动风机、电磁阀等外部控制设备。
3. 无线传输扩展能力
支持Zigbee、LORA、433M、4G、WiFi、NB-IoT、GPRS等多种无线通信协议,满足不同现场布线条件下的数据上传需求,助力构建智能化监测网络。
4. 友好人机交互界面
配备点阵式高清LCDTFT显示屏,支持中英文菜单切换,显示清晰直观,用户操作更便捷。
5. 安全可靠的防爆结构
整机采用铝合金铸体防爆外壳,符合Ex db IIC T6 Gb防爆等级要求,防爆证编号SYEx23.04100,适用于IIC类爆炸性气体环境。
| 项目 | 参数 |
|---|---|
| 气体名称 | 分子式 |
| 一氧化碳 | CO |
| 氧气 | O2 |
| 硫化氢 | H2S |
| 氢气 | H2 |
| 二氧化硫 | SO2 |
| 二氧化氮 | NO2 |
| 一氧化氮 | NO |
| 氯气 | CL2 |
| 氯化氢 | HCL |
| 可燃性 | EX |
| 甲醛 | CH2O |
| 环氧乙烷 | C2H4O |
| 联氨 | N2H4 |
| 氨气 | NH3 |
| 六氟化硫 | SF6 |
| 氟利昂 | CFC/R507 |
| 氟利昂 | R12/R22 |
| 氟利昂 | R125/R290 |
适用领域:石油化工、天然气处理、煤矿安全、冶金制造、制药车间、半导体生产、环保监测、城市燃气管网、消防应急等存在可燃、有毒、有害气体泄漏风险的工业与公共安全场景。

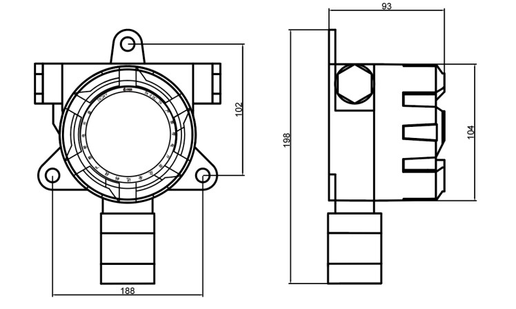
图示:GY/VGD-200-He-G(0-10%Vol)产品尺寸图

图示:产品安装建议图,指导正确布设位置与安装角度
执行标准:
GB/T3836.1-2021《爆炸性环境第一部分:通用要求》
GB/T3836.31-2021《爆炸性环境第三十一部分:由防粉尘点燃外壳“t”保护的设备》
GB3836.15-2000《爆炸性气体环境用电气设备第15部分:危险场所电气安装(煤矿除外)》
GB12476.1-2013《可燃性粉尘环境用电气设备第1部分:通用要求》
GB12358-2006《作业场所环境气体检测报警仪通用技术要求》
GBZ2.1-2007《工作场所有害因素职业接触限值》
GB4208-2008《外壳防护等级(IP代码)》
建议定期进行零点校准和满量程标定,以保证测量精度;避免在强电磁干扰环境中长期运行;清洁时请使用干燥软布擦拭外壳,禁止使用腐蚀性溶剂;安装位置应避开高温、高湿、强振动区域;严禁擅自拆卸防爆外壳,维修须由专业人员在断电后进行。
A:该型号检测仪的检测范围为0-10%Vol,支持可选更高量程。
A:支持三线制4-20mA模拟信号、RS485数字信号、开关量输出,以及Zigbee、LORA、4G、WiFi、NB、GPRS等无线传输方式。
A:可以,设备支持通过红外遥控器实现免开盖的报警值设定、调零、校准、复位和地址码修改等功能。
A:防爆等级为Ex db IIC T6 Gb,防爆证编号SYEx23.04100。
A:符合GB/T3836.1-2021、GB/T3836.31-2021、GB3836.15-2000、GB12476.1-2013、GB12358-2006、GBZ2.1-2007、GB4208-2008等多项国家标准。








1、首先客户需要确认产品品牌、产品型号、产品货号、产品规格、参数、货期等;
2、其次确认产品旳使用须知,买卖双方信息相互,确认收货和收票地址;
3、科研仪器设备属于精密仪器,非产品质量问题本公司不做退换货处理,购买时请再三确认;
4、小型仪器退换货要求确保仪器未拆箱、未通电、未使用、附件包装完好无损不影响二次销售,联系客服人员处理退换货事宜;
5、退换货要求产品外包装套纸箱,禁止无包装发货,拒收到付;

